LVSHG型行車式刮渣(刮泥)機

用途:
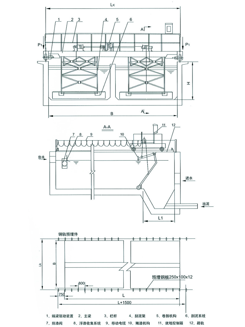
LVSHG型橋式刮渣(刮泥)機主要用于城鎮污水處理廠及自來水廠的平流式沉淀池的排泥,該機為單向刮泥,根據用戶要求,可增設撇渣裝置。
結構及工作原理:
該設備采用移動橋式,當刮泥機不工作時,即停在進水端;當刮泥機工作時,順水流行駛時,先放下撇渣板,將池面浮渣撇向池端鋼制撇渣槽內,而刮泥板被提離池底;反向行駛時,放下刮泥板將池底污泥刮向池端集泥槽內,而撇渣板被提起,離開液面以防浮渣逆行;依此作往返工作運動,從而達到刮泥、撇渣的目的。
型號說明:
LVSHG型橋式刮渣(刮泥)機主要用于城鎮污水處理廠及自來水廠的平流式沉淀池的排泥,該機為單向刮泥,根據用戶要求,可增設撇渣裝置。
結構及工作原理:
該設備采用移動橋式,當刮泥機不工作時,即停在進水端;當刮泥機工作時,順水流行駛時,先放下撇渣板,將池面浮渣撇向池端鋼制撇渣槽內,而刮泥板被提離池底;反向行駛時,放下刮泥板將池底污泥刮向池端集泥槽內,而撇渣板被提起,離開液面以防浮渣逆行;依此作往返工作運動,從而達到刮泥、撇渣的目的。
型號說明:

主要技術參數和安裝尺寸:

主要特點:
雙邊驅動,兩側滾輪傳動同步,運行平穩;
水上行車采用鋼輪行走,水下刮板采用橡膠滾輪行走;
撇渣與刮泥為反向工作;
操作簡便,可直接就地遠程控制設備的運行。
外形安裝尺寸:
雙邊驅動,兩側滾輪傳動同步,運行平穩;
水上行車采用鋼輪行走,水下刮板采用橡膠滾輪行走;
撇渣與刮泥為反向工作;
操作簡便,可直接就地遠程控制設備的運行。
外形安裝尺寸:

上一篇:LVSZG型中心傳動刮泥機
下一篇:LVCF型渦凹氣浮